Автоматический пеллетный котел мощностью 250 кВт применяется на предприятиях лесопереработки, деревоперерабатывающих предприятий и в сельском хозяйстве, для сушильных камер, для теплиц, для производства, отопления промышленных помещений и зданий.
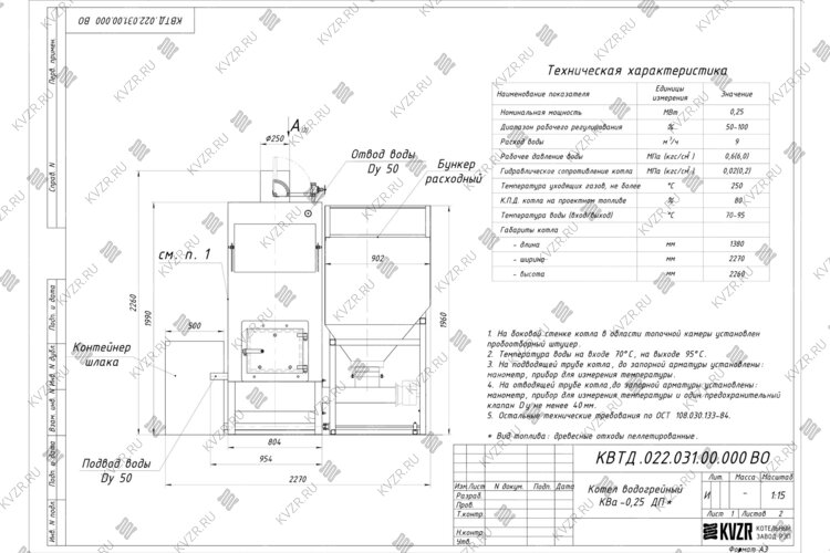
Котел на пеллетах 250 кВт для отопления и производства, изготавливается водотрубным стальным, с бункером для пеллет, шнековым питателем, вихревой топкой, котельным блоком с топочной камерой для горения пеллет и конвективными пакетами для нагрева воды до требуемой температуры.
Топка вихревого водогрейного котла 250 кВт на пеллетах представляет собой опорный каркас под установку котла. Футеровка топки выполняется из огнеупорного кирпича и шамотного бетона для создания пояса зажигания для сжигания пеллет. Вихрь создается раздельной подачей воздуха. Над кирпичным подом устроена топочная камера, куда подается воздух и происходит горение топлива. Весь объем окружен трубами, воспринимающими тепло и нагревающие воздух. Топочная камера газоплотная, что исключает присосы воздуха и дымление в котельной. Первичный воздух подается высоконапорным вентилятором в зону подачи топлива горение и создание первичного вихря. Вторичный воздух подается вентилятором среднего давления слоя для дожига горючих и поддержания вторичного вихря.
Шнековый питатель подает пеллеты из расходного бункера в котел. Приводом питателя служит мотор редуктор. В конструкции шнекового питателя дополнительно предусмотрено воздушное охлаждение выходного узла, что препятствует возможности воспламенения топлива в питателе и увеличивает надежность работы.
Бункер для пеллетного котла располагается на общей раме совместно с приводом питателя. Конструкция бункера под древесное топливо и узел соединения со шнековым питателем позволяет полностью опорожнять бункер за счет питателя топлива.
Водяной котел отопления на пеллетах 250 кВт состоит из топочной камеры экранированной газоплотными сварными панелями с вертикальными трубами соединенных раздающими и собирающими коллекторами. Обмуровка выполняется из тепловой обшивки и декоративных листов. Выход газов осуществляется сзади и сверху топочного блока.
Твердотопливный котел на пеллетах 250 кВт промышленный работает полностью автоматически. Автоматика осуществляет автоматический розжиг, запуск, работу регулировку давления и остановку котла в случае превышения допустимых параметров работы. Автоматика осуществляет автоматическую подачу топлива с контролем производительности по заданной температуре теплоносителя. Подача воздуха осуществляется в зависимости от объема поданного древесного топлива. В котле с автоподачей пеллет предусмотрена система пожаротушения в случае воспламенения топлива в топливопроводе.
Комплект автоматики состоит из щита управления котлом, контрольно измерительных приборов КИП и исполнительных механизмов.
Промышленный котел на пеллетах мощностью 250 кВт работает с автоматикой, включающей в себя контроль и регулировку следующих параметров:
На случай возникновения необходимости сжигания дополнительно крупногабаритных древесных отходов, автоматика может переключиться в ручной режим работы и подача топлива осуществляется вручную кочегаром через загрузочную дверку.
Подключение и монтаж промышленного котла, который работает на пеллетах мощностью 250 кВт производятся по проекту.
В зависимости от количества котельных агрегатов, наличия или отсутствия теплообменников существуют различные варианты схем подключения котла.
Комплектация котла на пеллетах на твердом топливе включает в себя:
Автоматика приобретается отдельно, ее рекомендуется заказать по техническому заданию, с учетом ваших пожеланий.
Купить котел 250 кВт на пеллетах и все необходимое для его подключения вы можете на нашем заводе. Также наш завод оказывает услуги по проектированию, монтажу, шеф монтажу и пуско-наладке котельных.
На заводе изготовителе отопительный российский котел 250 кВт на пеллетах подвергается гидравлическому испытанию давлением 0,9 МПа (9 кгс/см2).
Срок эксплуатации отопительного котла на пеллетах 10 лет. Наш котел может рассматриваться, как аналог котлов Гефест и ковровских котлов на пеллетах. Действующая цена на котел на пеллетах 250 кВт указана на сайте. Производство пеллетных котлов по техническому заданию завод осуществляет в течении 10-20 рабочих дней.
Цена водогрейного котла на пеллетах 250 кВт в Перми включает в себя котельный блок в изоляции, ретортную топку, шнек и бункер для пеллет, вентили, затворы, манометры, термометры, вентилятор поддува и предохранительные клапаны. Ниже приведена подробная информация.
Для эффективной и надежной работы котла на пеллетах 250 кВт в вашей котельной вам потребуется дополнительное оборудование - автоматика ЩУК, дымосос, насос сетевой и подпиточный, золоуловитель (по желанию), газоходы и переходники для газового тракта, дымовая труба. Мы предлагаем рассмотреть типовые варианты комплектации.
В случае если у вас на объекте уже имеется насосное и тягодутьевое оборудование, мы можем проверить совместимость котла на пеллетах 250 кВт нашего производства и вашего оборудования.
Можем изготовить нестандартные узлы для выполнения быстрого монтажа котла - газоходы и узлы обвязки.
Типовую схему монтажа котла вы можете посмотреть во вкладке схемы подключения и монтаж.
Полностью автоматическое регулирование работы котла:
Водогрейный твердотопливный стальной отопительный пеллетный котел 250 кВт, предназначен для получения горячей воды номинальной температурой на выходе из котла от 95 до 115 °С рабочим давлением до 0,6 (6,0) МПа (кгс/см), используемой в системах централизованного теплоснабжения на нужды отопления, горячего водоснабжения. Устанавливается в производственных, промышленных и отопительных котельных.
Монтаж водогрейного котла на пеллетах 250 кВт и вспомогательного оборудования в котельной должно производиться в соответствии с проектом и учетом требований СП 89.13330. 2016 «Котельные установки. Актуализированная редакция СНиП II-35-76» и «Правил устройства и безопасной эксплуатации паровых котлов с давлением пара не более 0,07 МПа (0,7 кгс/см2), водогрейных котлов и водоподогревателей с температурой нагрева воды не выше 388 К (115 С). Правильный монтаж котла – залог его надежной и долгой работы.
Чтобы правильно подключить пеллетный котел 250 кВт в котельной необходимо оставить проемы для обслуживания оборудования во время эксплуатации. На представленной здесь схеме указаны их минимальные размеры. Кроме того, в данной примерной схеме монтажа водогрейных котлов и оборудования указан перечень минимально необходимого вспомогательного оборудования для правильной работы котла.
К вспомогательному оборудованию при подключении промышленного водогрейного твердотопливного котла относят - щит управления котлом, насос циркуляционный, насос подпиточной воды, бак запаса воды, расширительный мембранный бак, дымовую трубу, систему газоходов и дымосос, золоуловитель (по желанию).
В случае если подпиточная вода не соответствует по своим характеристикам требованиям к питательной воде, необходимо предусмотреть систему водоподготовки котловой воды.
Для котельных 1 категории, являющиеся единственным источником тепла системы теплоснабжения и обеспечивающие потребителей первой категории, не имеющих индивидуальных резервных источников тепла, необходимо предусмотреть полное резервирование оборудования – подключение 2 (двух) котлов, насосов, ТДМ. Пунктиром обозначено оборудование для резервирования.
Для котельных 2 категории, включающие в себя промышленные и производственные котельные резервирование нужно предусматривать по необходимости.
Образец тепловой схемы подключения оборудования в котельной приведен на данной схеме. При эксплуатации очень важно грамотно осуществить подключение оборудования, установить все контрольно измерительные приборы, для контроля параметров работы котельной и запорную арматуру для оперативного переключения потока теплоносителя при плановой или аварийной остановке оборудования. Данную схему можно использовать как пример для разработки под свой объект или заказать у нас разработку индивидуальной схемы для вашей котельной.
Водогрейные котлы производства Котельный завод "РЭП" соответствуют строгим стандартам качества и безопасности. Завод производит котлы в соответствии с требованиями ГОСТ 30735-3001 по Техническим Условиям завода.
Котлы имеют сертификаты соответствия Техническим регламентам Таможенного союза:

Отзыв о работе котла КВр производства Котельный завод "РЭП", проработавшего на АО "Водоканал" г. Белокуриха 10 лет. Интервью предоставил заместитель главного директора по производству Суходоев Сергей Николаевич.

Интервью с главным энергетиком базового комплекса "Сводор" г. Барнаул о работе водогрейного котла нашего производства, отапливающего предприятие с 2008 года.
Котельный завод производит котел для отопления на пеллетах мощностью 250 кВт для производства, сушильных камер, теплиц и промышленных твердотопливных водогрейных котельных.
Подобрать мощность котла по площади важно учитывая не только площадь и объем здания, но и тип зданий и климатические данные региона.
На нашем сайте калькулятор расчета мощности котла учитывает тепло, требуемое на возмещение тепловых потерь через строительные конструкции и потери, вызываемые инфильтрацией (проникновением) наружного воздуха, через их неплотности и периодически открываемые двери.
Наружный строительный объем здания должен определяться умножением площади горизонтального сечения, взятого по внешнему обводу здания на уровне первого этажа на полную высоту здания, измеренную для панельных зданий: от уровня чистого пола (нулевой отметки) до верхней плоскости теплоизоляционного слоя чердачного покрытия, для остальных строений от уровня земли.
Расчетная температура воздуха в отапливаемых зданий принимается в зависимости от типа и назначения здания:
В случае если требуется отопление различных по типу зданий, теплопотребление каждого считается отдельно, полученные значения складываются и подобрать мощность котла нужно в соответствии с общей суммарной мощностью каждого отдельно стоящего задания.
Климатические условия вашего региона принимаются в соответствии с СП 131.13330 Строительная климатология. Данные по всем регионам России занесены в наш калькулятор расчета мощности котла.
Подобрать мощность котла по площади с учетом потребностей объекта в тепле на вентиляцию и горячую воду возможно только с более детальным расчетом. Его вы можете заказать в отделе сбыта котельного завода отправив заявку на электронный адрес sb@kvzr.ru или позвонив по телефонам (38-52) 29-97-41, 29-97-42.